
Project type. retaıl
year. 2024
locatıon. kadıköy / ıSTANBUL
sqUARE. 250 m²
role. ınterıor desıgn & project planıng
structure with a light accent between lips.
We were inspired by "lily-white laughter", which is the main goal of dental health druing the design process of the Eşrefoğlu Dental Clinic. The design blends red tones with light and bright color palette, evoking the contract between white teeth and red lips. In addition to this this inviting athmosphere, we redesigned the layout to introduce a more modern and functional space. Organic shapes inspired by the natural form of teeth, defined to establish a warm and intimate enviroment. These forms, paired with plant elements, soften the space and create a calmşnh atmosphere, moving away from the traditional sterile feel of dental clinics. In the treatment rooms, we focused on the technical requirements essential for dental care, integrating equipment seamlessly into the design to create a functional yet stylish setting.




TENDER GEOMETRY:
// CORRIDORS THAT EMBRACE THE SOUL.



Project GALLERY















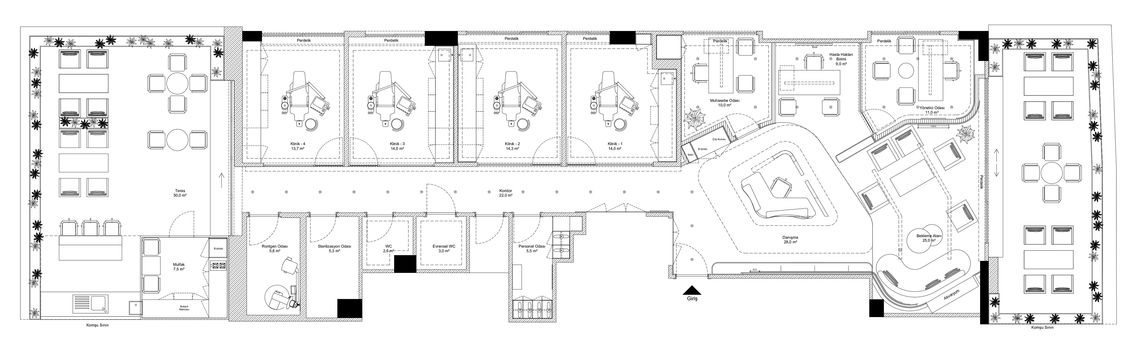
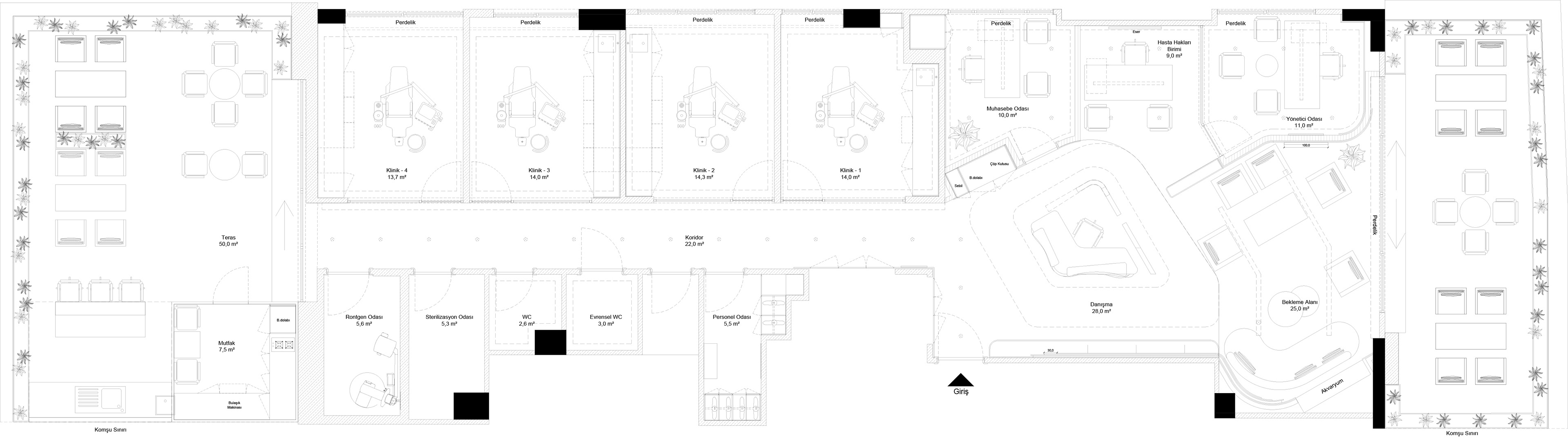
TECHNICAL PROJECT




